Rakennessuunnittelu

Rakentamislain mukaan:
Erityissuunnittelijan (tässä rakennesuunnittelija) on huolehdittava siitä, että hänellä on käytössään suunnittelussa tarvittavat lähtötiedot, ja että erityissuunnitelma (tässä rakennesuunnitelma) täyttää rakentamista koskevien säännösten ja määräysten sekä hyvän rakennustavan vaatimukset.

Jos erityissuunnitelman laatimiseen on osallistunut useampi kuin yksi erityissuunnittelija, rakentamishankkeeseen ryhtyvän on nimettävä yksi heistä tämän erityisalan kokonaisuudesta vastaavaksi erityissuunnittelijaksi. Vastaavan erityissuunnittelijan on huolehdittava, että erillistehtävinä laaditut suunnitelman osat muodostavat keskenään toimivan kokonaisuuden.

Rakennesuunnittelija laatii rakennussuunnitelmien pohjalta toteutuskelpoiset rakennesuunnitelmat, joiden mukaan rakennus toteutetaan. Rakennesuunnittelijan tehtäviin kuuluvat muun muassa perustusten-, kellarin-, kantavan rungon- ja vesikattorakenteiden suunnittelu. Lisäksi rakennesuunnittelija laatii suunnittelemat märkätiloista sekä savupiippujen läpivienneistä. Rakennesuunnittelija suunnittelee rakenteet ja niiden liittymät siten, että ne toimivat rakennusfysikaalisesti oikein. Insinööritoimisto Koivun kautta saat kaikki uuden rakentamiseen ja vanhan korjaamiseen tarvittavat rakennesuunnitelmat. Oli kyseessä sitten uuden omakotitalon suunnittelu, perustussuunnittelu talopakettitoimitusta varten tai esimerkiksi rintamamiestalon kellaritilojen tai vesikaton korjaussuunnittelu.


rakennessuunnittelu
pääsuunnittelu

Pääsuunnittelu

Rakentamislain mukaan:
Rakentamislupaa edellyttävässä rakentamishankkeessa on oltava pääsuunnittelija. Pääsuunnittelijan on huolehdittava suunnittelun kokonaisuudesta ja laadusta sekä siitä, että rakennussuunnitelma ja erityissuunnitelmat muodostavat kokonaisuuden siten, että rakentamista koskevat säännökset ja määräykset sekä hyvän rakennustavan vaatimukset täyttyvät.

Pääsuunnittelija toimii rakennushankkeessa yhdyshenkilönä rakennusvalvonnan suuntaan. Pääsuunnittelijan tehtäviin kuuluu eri suunnitelmien ristiriidattomuuden tarkastaminen, huolehtia että muilla suunnittelijoilla on viimeisimmät suunnitelmat lähtötietonaan sekä rakennusluvan hakeminen. Pääsuunnittelijana voi toimia hankkeen arkkitehti, mutta usein etenkin talopakettitoimituksissa, pääsuunnittelija on erillinen henkilö.

Rakennussuunnittelu

Rakentamislain mukaan:
Rakentamishankkeessa on oltava yksi tai useampi rakennussuunnittelija. Rakennussuunnittelijan on huolehdittava siitä, että hänellä on käytössään suunnittelussa tarvittavat lähtötiedot, ja että rakennussuunnitelma täyttää rakentamista koskevien säännösten ja määräysten sekä hyvän rakennustavan vaatimukset.

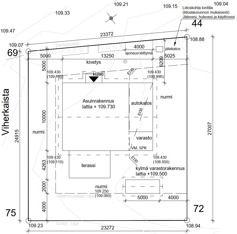
Rakennussuunnittelija laatii kohteen asemapiirustuksen, pohjapiirustuksen, leikkauspiirustuksen sekä julkisivupiirustuksen. Tätä suunnitelmakokonaisuutta kutsutaan usein nimellä lupapiirustukset.

Insinööritoimisto Koivu laatii tavanomaisesti lupapiirustukset asiakkaan hahmotelman tai esimerkkipohjapiirustuksen pohjalta. Meiltä saa myös esimerkiksi pelkän asemapiirroksen, joka usein puuttuu talopakettitoimittajan kuvapaketista.

rakennussuunnittelija